[Estate] - Urraween

  • $929,080 - $988,974
Hervey Bay, Urraween, QLD, 4655

[Estate] - Urraween

Hervey Bay, Urraween, QLD, 4655
  • $929,080 - $988,974

Details

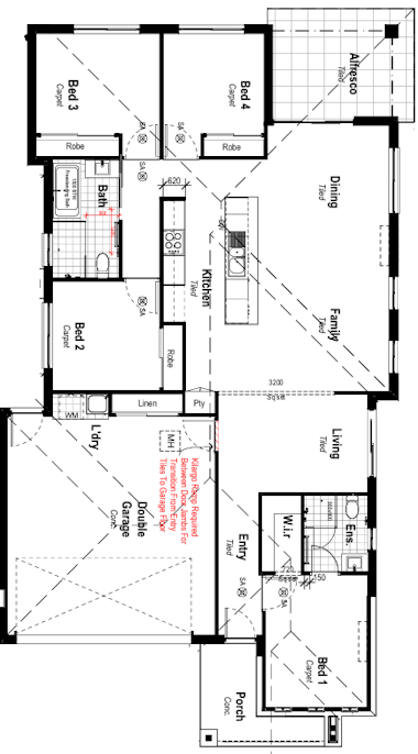
  • Property ID:16446
  • Bedrooms:4
  • Bathrooms:2
  • Garage:2
  • Property Type:House and Land

Description

*Please be advised that some lots/units may need confirmation of availability. Kindly ensure to check availability first by emailing or phoning us.*

Ideally located in some of Australia's most sought after sea change locations, every [Estate] offers countless lifestyle benefits right on your doorstep. Stroll to pristine white sandy beaches or enjoy easy access to extensive local services. Find your oasis today!

Ideally located in one of Australia's most popular sea change locations.  Walk to local cafes, medical and shopping centre, and within easy reach of unspoilt beaches. Secure your oasis today and immerse yourself in the natural beauty of the world famous Fraser Coast

Perfectly positioned in one of Australia's favourite seaside communities. Just 400m to a patrolled beach and extensive coastal boardwalk, along with cafes and local shopping

We create custom homes to suit your hobbies, passions and way of life. Whether you're looking for a home base for your caravan or RV, love the outdoors and need room for your toys, enjoy tinkering in the shed, or love entertaining, we have a range of custom home designs perfect for you.

Sub listings

Title Price Beds Baths Garages Storeys Living Area Land Size
101 $964,097 4 2 2 1 186.90 m2 539 m2
104 $964,197 4 2 2 1 211.10 m2 409 m2
112 $988,974 4 2 2 1 201.80 m2 609 m2
219 $929,080 4 2 2 1 178.20 m2 508 m2

Address

  • Address Hervey Bay, Urraween, QLD, 4655
  • City Hervey Bay
  • State/countyQLD
  • Zip/Postal Code 4655
  • Country Australia

Similar Listings

  • $900,249

House and Land

[Estate] - Woodgate

  • $900,249
Bundaberg Region, Woodgate, QLD
  • Beds: 4
  • Baths: 2
  • Garage: 2

Rental Yield: 4.27%

Details
  • $849,700 - $887,500

House and Land

[Estate] - Urangan

  • $849,700 - $887,500
Hervey Bay, Urangan, QLD
  • Beds: 4
  • Baths: 2
  • Garage: 2

Rental Yield: 4.52%

Details
  • $783,990 - $784,990

House and Land

[Estate] - Tinana

  • $783,990 - $784,990
Maryborough , Tinana , QLD
  • Beds: 4
  • Baths: 2
  • Garage: 2

Rental Yield: 4.38%

Details
  • $1,030,939

House and Land

[Estate] - Pialba

  • $1,030,939
Fraser Coast, Pialba, QLD
  • Beds: 4
  • Baths: 2
  • Garage: 2

Rental Yield: 3.51%

Details

Compare listings

Compare